売買物件 - 詳細Property info
- 物件種目
- 新築戸建
- 価格
-
49,800,000 円(税込)
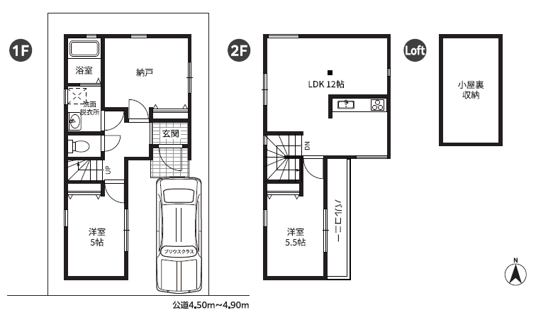
- 間取り
- 2SLDK
- 土地面積
-
62.82㎡
19坪
- 建物面積
-
62.22㎡
18.82坪
交通アクセス
東急東横線 綱島まで徒歩 18 分
※地図上に表示される物件の位置は付近住所に所在することを表すものであり、実際の物件所在地とは異なる場合がございます。
担当者コメント
都心アクセスと静けさを両立する住まい!
綱島生活圏で叶える快適な住まい
小屋裏収納付きで空間広がる都市型住宅
綱島生活圏で叶える快適な住まい
小屋裏収納付きで空間広がる都市型住宅
物件概要
| 所在地 | 神奈川県横浜市港北区新吉田東5丁目 | ||
|---|---|---|---|
| 土地面積 | 62.82㎡ / 19坪 | 建物面積 | 62.22㎡ / 18.82坪 |
| 私道有無 | 無 | セットバック | 無 |
| 都市計画 | 市街化区域 | ||
| 用途地域 | 第一種低層住居専用地域 | 建ぺい率/容積率 | 50% / 100% |
| 防火地域 | 準防火地域 | ||
| 他法令上の制限等 | 第1種高度地区 | ||
| 土地権利 | 所有権 | 地目 | 宅地 |
| 建物構造 | 木造 | 地上階層 | 地上 2階 |
| 築年月 | 2026年 07月 | ||
| 接道状況 |
接道1
道路種別 : - / 方向 : 南 / 幅員 : 4.5m |
||
| 価格 | 49,800,000 円(税込) | ||
| その他費用 | |||
| 駐車場 | 駐車スペース有 | ||
| 現況 | 未完成 | 引渡時期 | 相談 |
| 取引態様 | 媒介 | ||
| 水道/下水/ガス/電気 | |||
| 設備・条件等 | 間取り:2SLDK (LDK12帖、洋室5.5帖、洋室5帖、納戸) |
||
| 備考 | 建築確認番号:第25UDIIS建05598号 | ||
| その他 | 【ライフインフォメーション】 セブンイレブン横浜綱島上町店 約550m いなげや横浜綱島店 約750m イオン横浜新吉田店 約1500m しんよしだ幼稚園 約450m 横浜市立新吉田小学校 約550m 横浜市立新田中学校 約220m |
||
| 管理番号 | T0000001509 | ||
| 情報登録日 | 2026-04-04 | 情報更新日 | 2026-04-04 |

